日期:2026-01-10 14:21:12

现在买房的人越来越多开始盯着大平层看,尤其是那些想三代同堂的家庭

2025年了,房地产市场慢慢回暖,好房子概念到处都在推。改善型需求成了主力,四房五房成交占比明显涨起来。根据中指研究院的调查,居民不再满足基本空间,大家更想要品质高的户型。超六成人都选90到140平的,但真正带老人小孩一起住的,往往得往更大平层靠
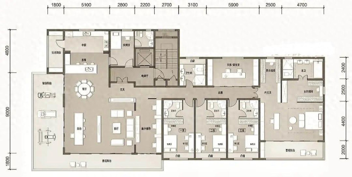
四卧全部朝南这种设计,简直太对味了。阳光一整天洒进来,老人住着身体舒服,孩子玩着也精神。采光好对健康有实打实的好处,冬天不阴冷,夏天通风顺畅。很多楼盘现在都爱搞四开间朝南,南向面宽拉到15米左右,视野一下子就开阔了。次卧开间也做得宽敞,老人房单独放一边,作息不一样也不会互相吵
可是光卧室朝南还不够。一家子得有个地方聚一块儿。北向大开间做家庭活动厅就特别实用,放投影看电影,打牌聊天,或者孩子搭积木,都不影响南边卧室休息。动静分区做得好,白天热闹晚上安静。私密性有了,互不打扰也做到了
客厅那边更亮眼。三面采光加超大阳台,直接连着餐厅,一眼望出去心情都好。开放式厨房跟客厅打通,做饭的时候还能跟家人聊聊天,看看孩子写作业。以前老户型厨房关着门,油烟重互动少。现在这样一体化,生活节奏一下子活络起来
格局还得方正才住得舒坦。这种大平层大多动线合理,老人走动不费劲,孩子跑来跑去也安全。阳台大到能放桌椅,夏天晚上一家人坐那儿乘凉,多惬意
说实话,三代同堂在中国还是挺常见的。虽然数据显示一代户占比快到50%,多代同堂比例在降,但改善需求里带父母小孩的家庭占比不低。尤其二孩三孩政策后,很多人都想一步到位。像北京新政允许五环内多买一套,就是冲着多子女家庭去的。叠加公积金优惠,换大房的动力更足
楼盘案例也多起来了。青岛有些第四代住宅,140平左右就能做到双主卧,适合不同年龄段住。江门大平层市场去年就靠产品力走红,空间宽敞专门为三代设计。上海北京的改善盘,四房成交占比已经到30%以上。保利一些项目,主卧套房大,卫生间带窗通风好,老人孩子都住得下
还有沈阳南京的楼盘,直接把三居四居推给三代同堂家庭。价格实惠,空间够用,照顾父母小孩两头方便。武汉清能锦城那种110到143平迭代户型,也强调全生命周期,避免以后家庭大了再折腾换房
当然不是所有大平层都完美。得看地段学区配套。但这种四卧朝南双厅的,确实戳中了很多人的痛点。老人需要安静阳光,孩子需要活动空间,夫妻需要互动区域。全家人在一起,又不挤不乱,促进感情还实打实
2025年底了,市场在稳。改善型大户型需求预计还会涨。十五五期间城镇住房总需求近50亿平米,改善性占比超四成。谁家不想住得宽敞点舒服点呢
要是正纠结换房,这种格局的大平层真值得看看。阳光充足,空间实用,一家老小其乐融融。生活嘛,就是图个温馨和谐
参考资料: 2025-12-29 新华网《满足居民多样化住房需求》
参考资料: 2025-07-15 中国新闻网《专家:“好房子”成为中国房地产业新增长点》
参考资料: 2025-05-07 新华网《改善型需求带动“五一”楼市热度攀升》
升富配资提示:文章来自网络,不代表本站观点。